КОНТАКТЫ
тел 8(8452)78-32-37, +79603450631
email: eurokaminsaratov@yandex.ru
410005, Россия, г.Саратов ул. им.Посадского И.Н. д 180/198, вход Eurokamin

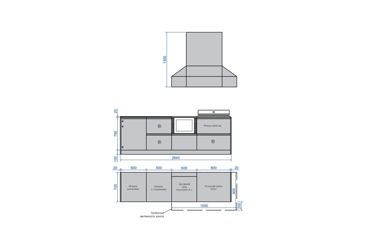
Кухня Astov BBQ № 12 (ширина 2640 мм)

Aстов
Astov BBQ № 12
892200,00
р.
Зона барбекю в частном доме с кухней Astov BBQ – это отличное место для приготовления вкусной еды на свежем воздухе. Здесь можно легко разжечь угли или включить газовый гриль, чтобы быстро начать готовить. Удобно, что все необходимые инструменты, такие как решетки, щипцы и специи, всегда под рукой. Также можно пригласить друзей и устроить веселую вечеринку на улице, наслаждаясь ароматами жареного мяса и овощей. Это делает готовку не только простой, но и приятной!
Внешний вид и параметры
Комплектация
Описание

Внешний вид и параметры

1. Фальш-панель боковая с регулируемыми ножками 20 мм
2. Модуль под мойку 600 мм (левый)
3. Модуль для хранения с 2мя ящиками 600 мм
4. Дровяная печь под казан 9 л 600 мм с доборной пластиной.
5. Угольный гриль Astov с нишей для хранения 800 мм
6. Фальш-панель боковая с регулируемыми ножками 20 мм
7. Вытяжной зонт 1550х900х1300 мм без подсветки












Комплектация

В комплектацию кухни Астов №12 НЕ ВХОДИТ столешница, мойка, смеситель, холодильник. Их можно заказать отдельно.
Фальш-панель боковая с регулируемыми ножками 20 мм.
Модуль под мойку 600 мм (левый).
Модуль для хранения с 2мя ящиками 600 мм.
Дровяная печь под казан 9 л 600 мм с доборной пластиной.
Угольный гриль Astov с нишей для хранения 800 мм.
Фальш-панель боковая с регулируемыми ножками 20 мм.
Вытяжной зонт 1550х900х1300 мм без подсветки.
Корпус и фасады выполнены из оцинкованной стали толщиной 1 мм. Фасады двухконтурные толщиной 20 мм. с шумоизоляцией.
Фурнитура BLUM/HETTICH
Корпус и фасады покрашены порошковой краской, цвет RAL5011* (муар)
*- Цвет продукции на экране монитора и в печатных материалах может отличаться от реального
При необходимости замены техники в базовой комплектации или покупки данной модели уличной кухни без техники, обращайтесь к нашим менеджерам

Описание

Кухня BBQ из металла — это отличное решение для любителей готовить! Она оснащена дровяной печью под казан, где можно готовить вкусные блюда на огне. Угольный гриль позволяет быстро и удобно жарить мясо, овощи и даже рыбу. Такая кухня не только практична, но и станет настоящим украшением вашего гриль домика. Готовьте с удовольствием и наслаждайтесь временем с друзьями и семьей!
Сейчас смотрят